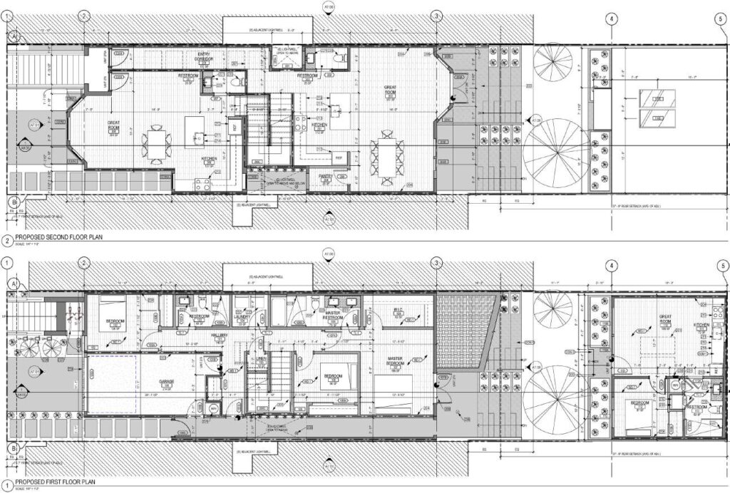
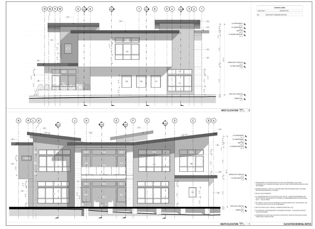
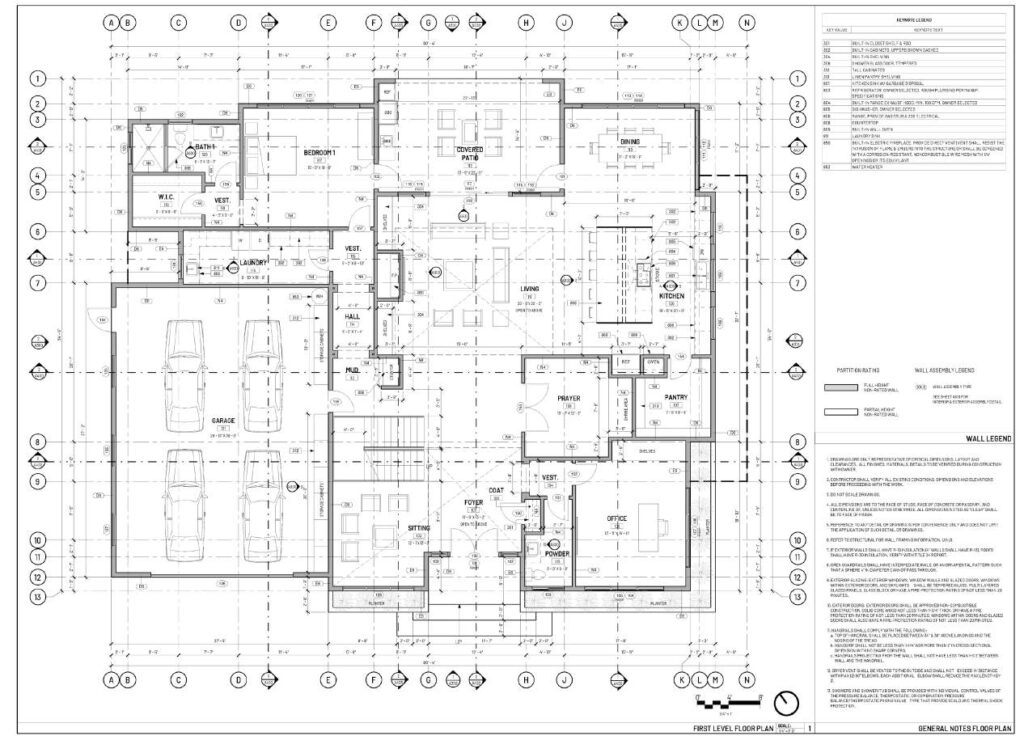
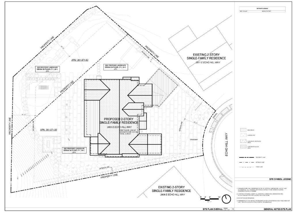
BIM VISUALS
Expert BIM Consultancy Services
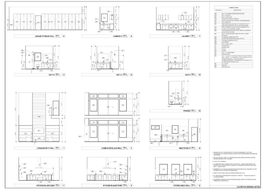
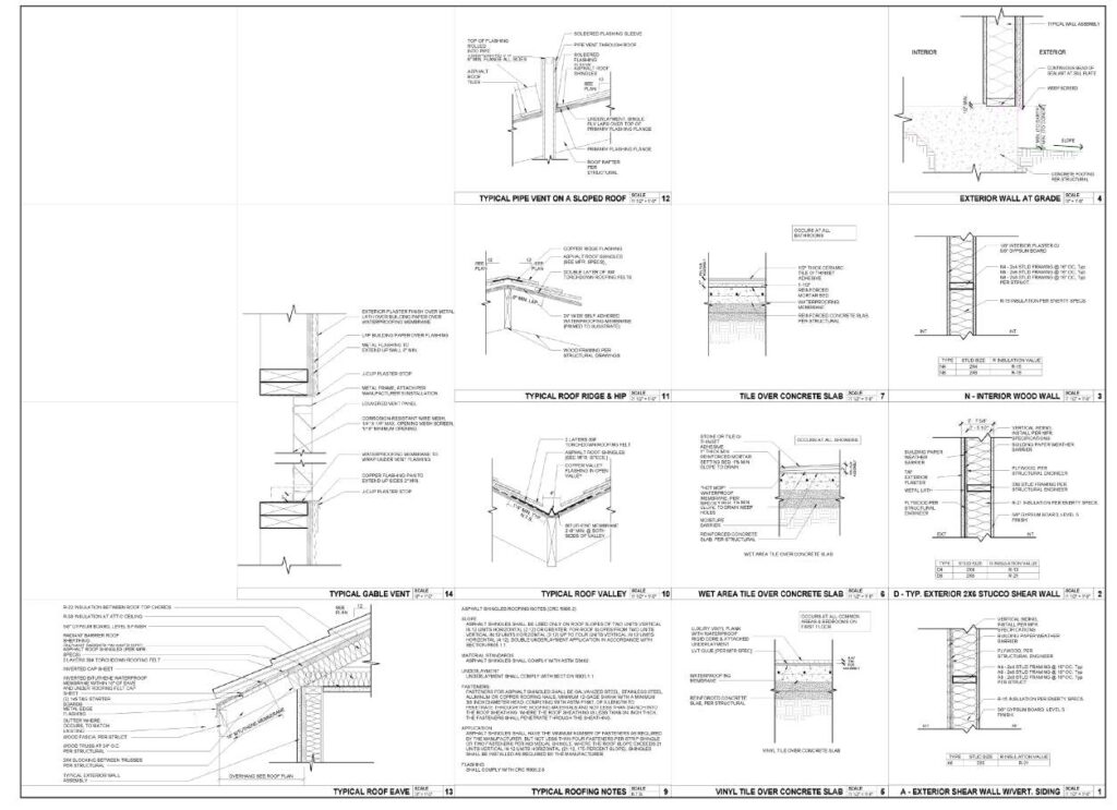
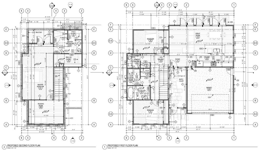
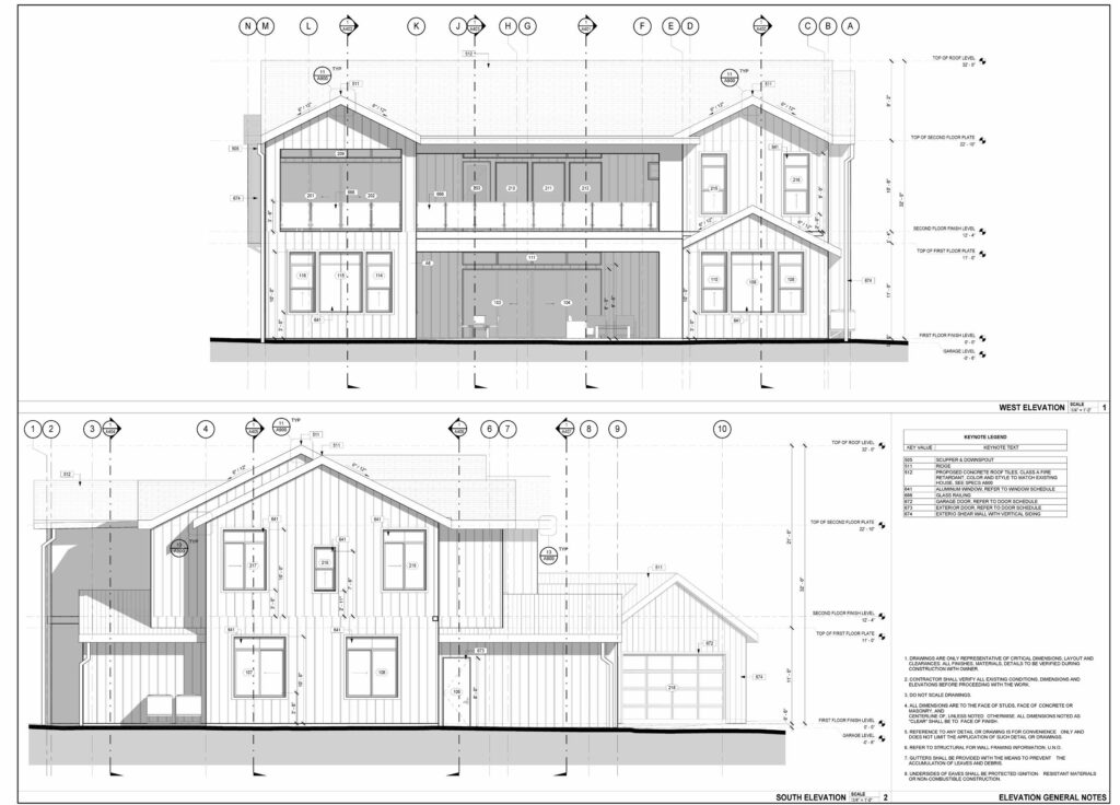
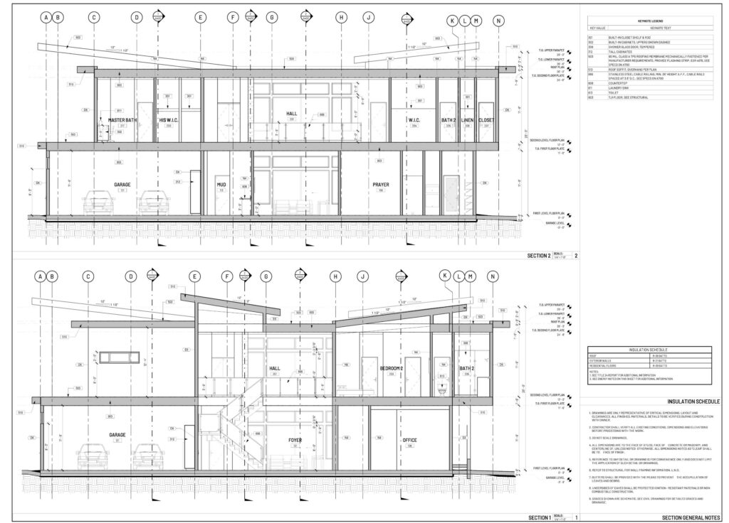
BIM Visuals & 3D Renderings
At Aquaakar, we turn technical data into stunning visual experiences. Our BIM Visuals and 3D renderings help architects, builders, and stakeholders visualize the final outcome before construction begins. From realistic walkthroughs to detailed isometric views, our visualizations bring clarity, creativity, and confidence to every project.
